YANIS
BARINAS
Santo Domingo, República Dominicana
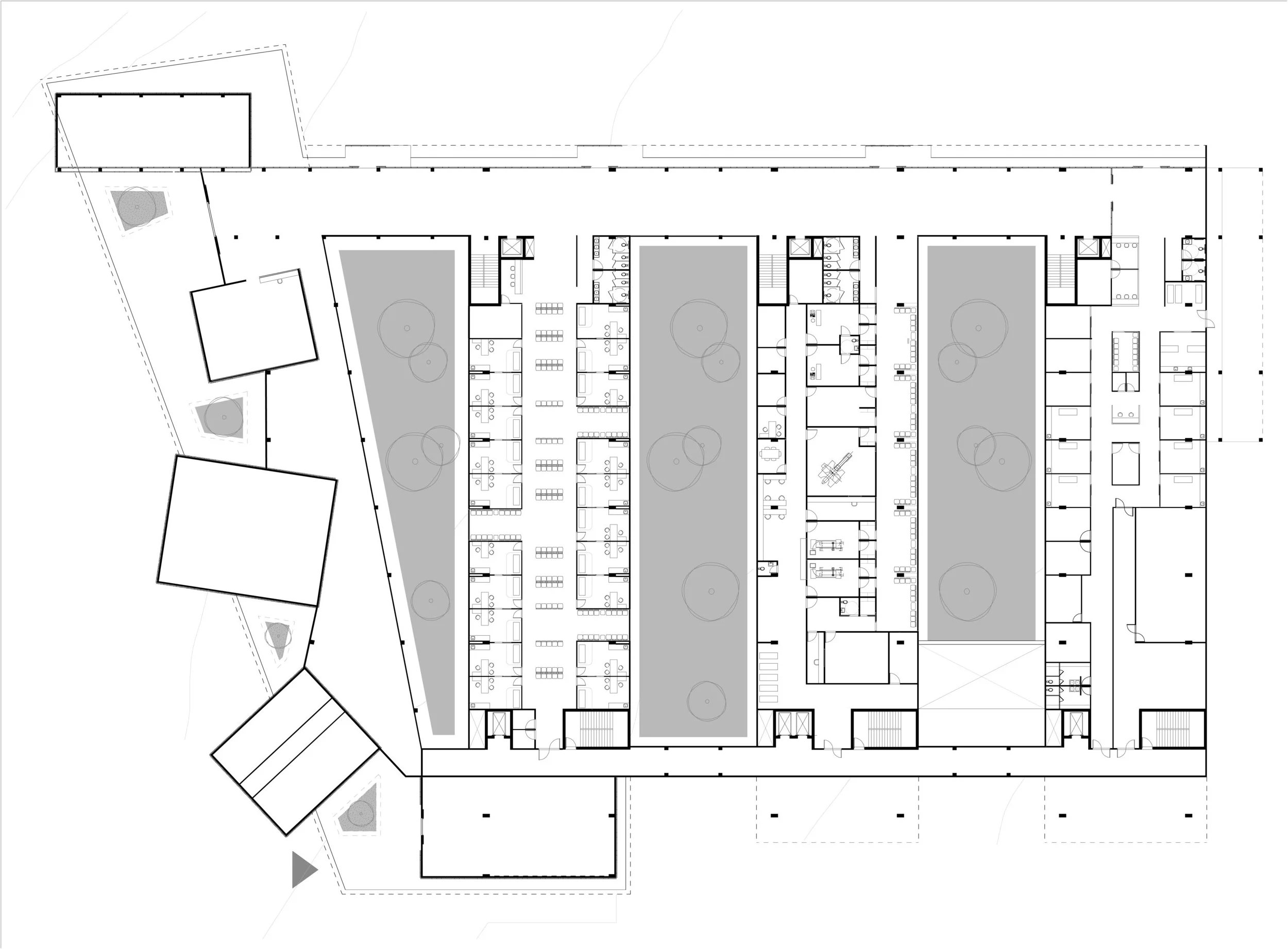
El terreno a intervenir está ubicado dentro de un solar boscoso con topografía pronunciada próximo a una escuela, utilizado como área de exploración y juegos por los niños. El concepto detrás del proyecto consiste en lograr la integración con el entorno para que se mantenga la sensación de paz existente y los niños no pierdan su área de recreo. Como resultado, el principal reto ha sido proyectar el orden que requiere el hospital y a la vez conservar el dinamismo de los árboles. Se plantea una zona intermedia que sirva de barrera hacia la escuela y nos dirige al acceso principal simulando que el bosque penetra el interior y de donde siempre hay vistas agradables que nos recuerdan donde nos encontramos.
